SO1981N - Neubau im Zentrum von Sóller
Eigenschaften
| Bebaute Fläche ca.: | 166 m2 |
| Gartenfläche ca.: | 84 m2 |
| Schlafzimmer: | 2 |
| Badezimmer: | 3 (en suite: 2) |
| Wohnzimmer: | 1 |
Beschreibung
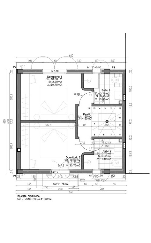
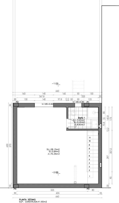
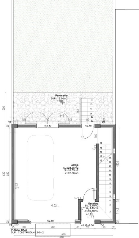
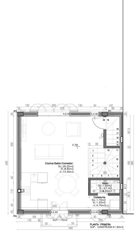
Diese neu gebaute Immobilie befindet sich in einer der bekanntesten Straßen von Sóller und ist nun fertiggestellt und bezugsbereit. Mit einer bebauten Fläche von 166 m² bietet das Haus ein modernes, funktionales und nachhaltiges Design, das sich über mehrere Etagen erstreckt:
Kellergeschoss: Ein vielseitig nutzbarer Raum, ideal als Heimkino, Fitnessraum oder Spielzimmer, sowie ein voll ausgestattetes Badezimmer.
Erdgeschoss: Garage mit direktem Zugang zum privaten Garten von 84 m².
Erste Etage: Offene, helle Küche mit Wohn- und Essbereich, Gäste-WC und Hauswirtschaftsraum.
Zweite Etage: Zwei Doppelschlafzimmer, jeweils mit eigenem Bad en suite.
Besondere Merkmale:
Smart-Home-System im ganzen Haus
Solarpaneele
Umkehrbare Klimaanlage (warm/kalt) in allen Räumen
Ladestation für Elektrofahrzeuge in der Garage
Doppelverglasung
Aluminiumrollläden
Kaminvorinstallation für Pellet-Ofen über Rauchabzug
Moderne Treppe aus Stahl und Holz
Voll ausgestattete Küche
Dieses Haus vereint Komfort, Energieeffizienz und zeitgemäßes Design in bester Lage des charmanten Dorfes Sóller. Bezugsfertig – einziehen und direkt genießen!
